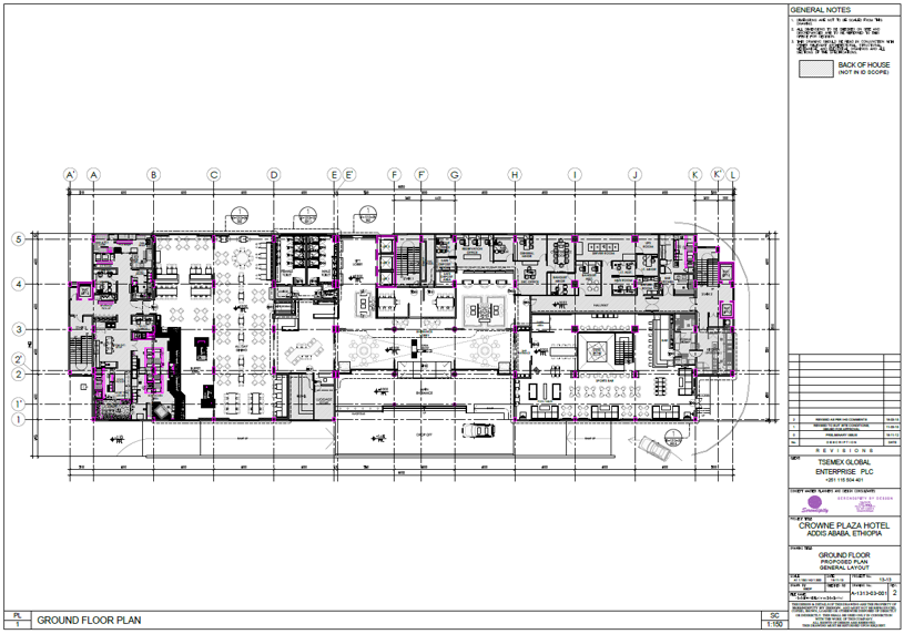
The Crowne Plaza Addis Ababa, designed to global luxury standards, represents a milestone project for InterContinental Hotels Group (IHG) as their first hotel in Ethiopia and a strategic expansion into their 13th African market. This 210-key business hotel brings a sophisticated, internationally branded hospitality experience to the capital, reflecting the rapid development and economic growth of Addis Ababa.
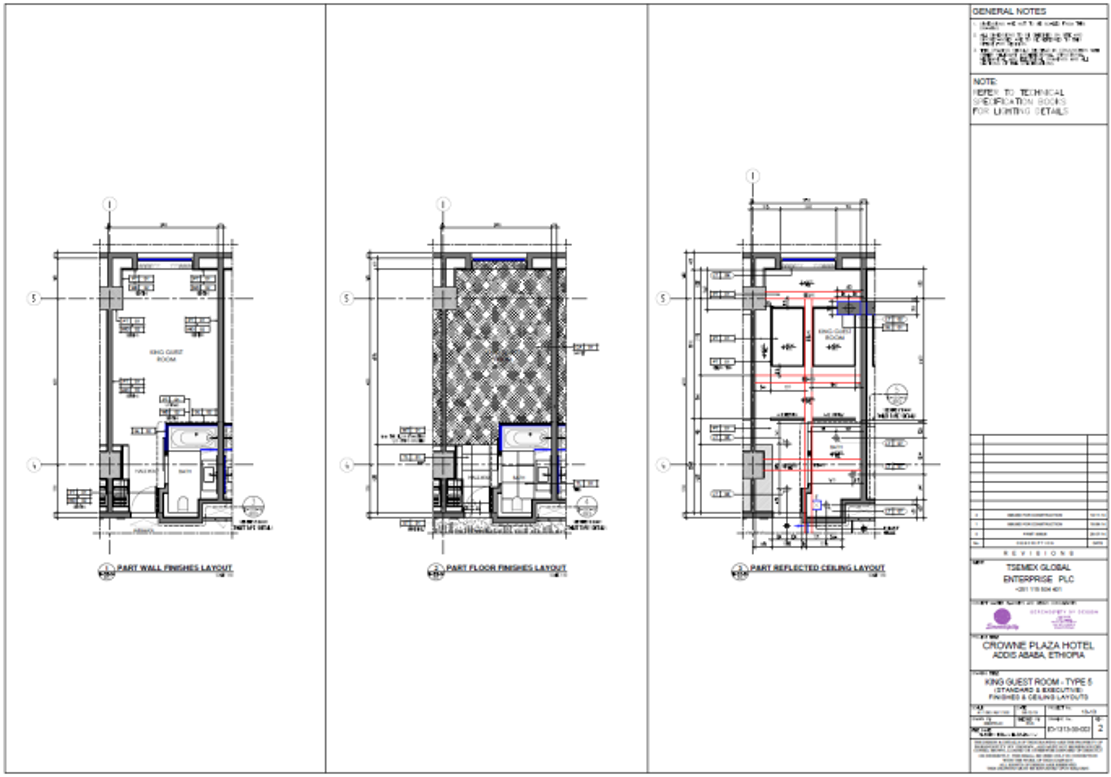
SBD was responsible for the architectural concept and design coordination, ensuring the hotel delivered an elegant yet efficient footprint for both business travelers and corporate events. Strategically located within close proximity to Addis Ababa's commercial hubs and international airport, the hotel features expansive guest rooms, modern conference facilities, and event spaces tailored for high-profile business meetings, MICE (Meetings, Incentives, Conferences & Exhibitions), and international delegations.
The development was partially financed by the International Finance Corporation (IFC) with a $11.5 million loan, underscoring the project's commitment to economic uplift and sustainable infrastructure. Environmental and social safeguards were embedded into the design and operational planning to align with IFC Performance Standards, ensuring a future-forward hotel that contributes positively to its community.
Crowne Plaza Addis Ababa is more than a hospitality project—it's a gateway to global business, a symbol of Ethiopia’s modernization, and a key node in IHG’s African expansion strategy.