Project Description

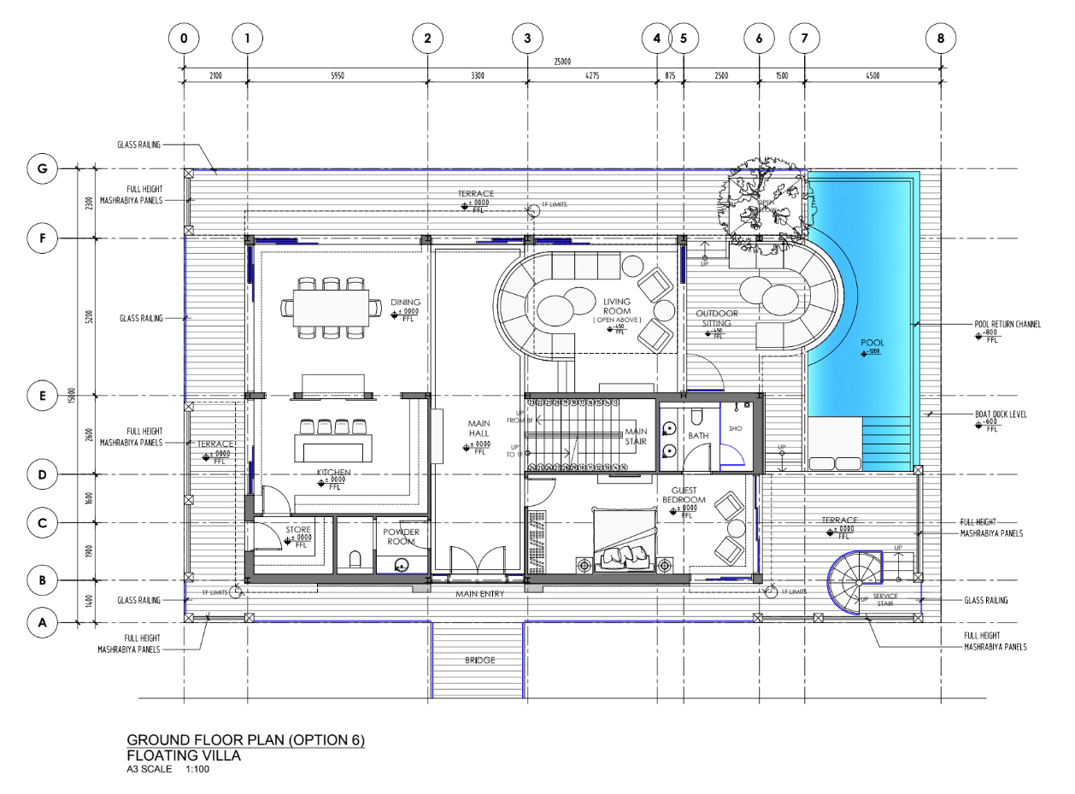
The Floating Villas competition in Dubai presented a bold challenge: to redefine the concept of luxury waterfront living by merging high-end hospitality with sustainable marine architecture. Our design proposal responded with a visionary solution—a modular, self-sustaining collection of floating residences that seamlessly integrate architecture, engineering, and ecology.

Anchored off Dubai’s iconic coastline, each villa was conceived as a sculptural form that rises organically from the water, its geometry influenced by the gentle curves of marine life and traditional dhow sails. The architectural language combined sleek minimalism with regional sensitivity, incorporating natural materials, passive cooling strategies, and high-performance glazing to maximize thermal efficiency while celebrating uninterrupted ocean views.

The villas were designed across multiple tiers, offering open-plan living spaces above water and submerged zones for bedrooms and spa areas, immersing occupants in the marine environment. Private decks, plunge pools, and green roofs were incorporated to enhance privacy and reinforce the project's connection to nature.

Functionally autonomous, each unit employed solar power generation, greywater recycling, and onboard waste treatment, demonstrating a commitment to long-term sustainability. The project was envisioned not as a single development, but as a scalable archipelago of floating communities—offering Dubai a new typology of ultra-luxury, low-impact living.

This proposal pushed beyond aesthetics to embody a future-forward vision of architecture in harmony with water—luxurious, resilient, and profoundly rooted in place.

  • DATE
    2018
  • PROJECT TYPE
    Competitiom
  • CLIENT
    The Heart of Europe
  • CREATIVE DIRECTOR
    Rebecca